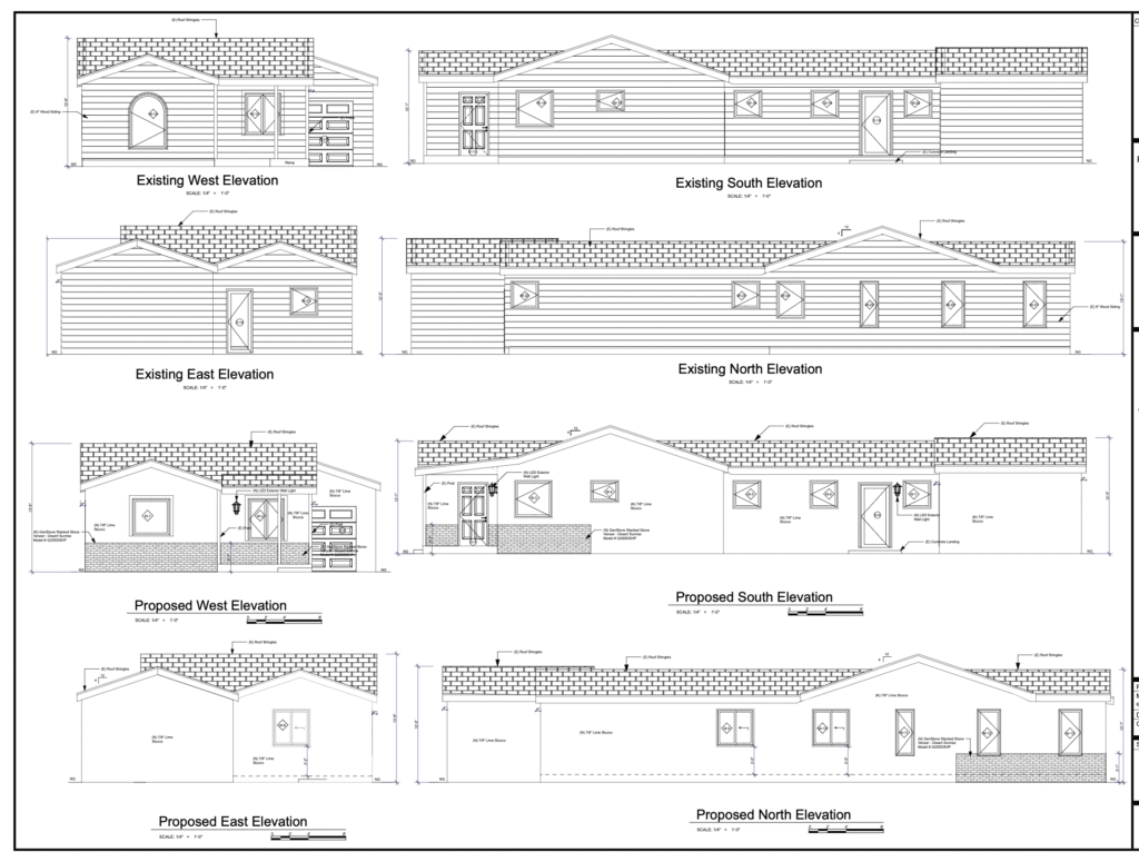
Project: Remodel (E) Residence + (N) Detached ADU

Scope of Work: Remodel existing residence and propose a new detached ADU at the rear of the property.

Building Size: (E) Residence 1481 sf + (N) ADU 920 sf 

Lead Designer: Ixtzul Marquez

Location: Bell, CA

ADU
Remodel Floor Plan
Remodel Elevations
Scroll to Top