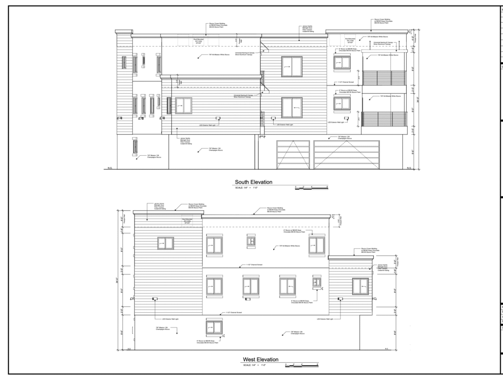
Project: CUP - Multi-family

Scope of Work: CUP – New three story apartment building consisting of 5 units.

Building Size: 6860 sf

Lead Designer: Ixtzul Marquez

Location: Compton, CA

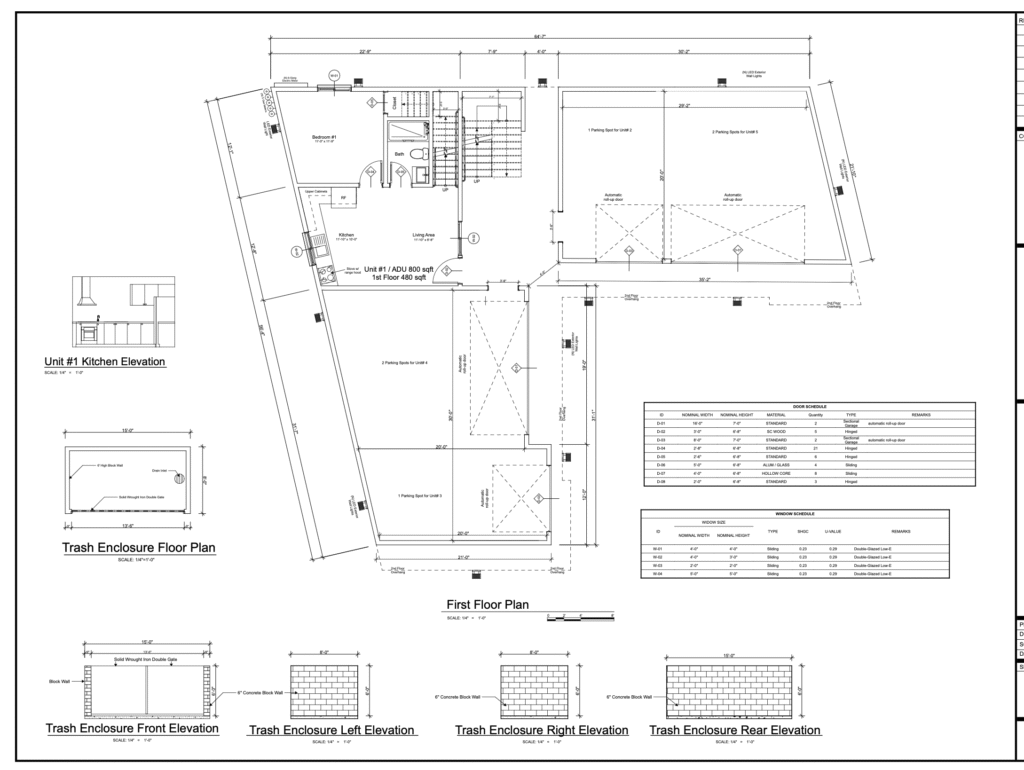
1st Floor Plan
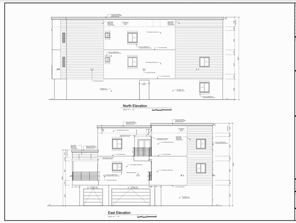
2nd Floor Plan
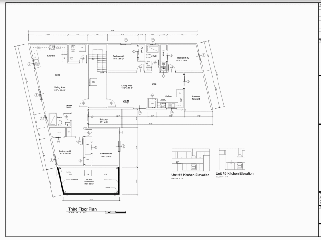
3rd Floor Plan
Scroll to Top