Project: Mildred Ave Warehouse Tenant Improvement

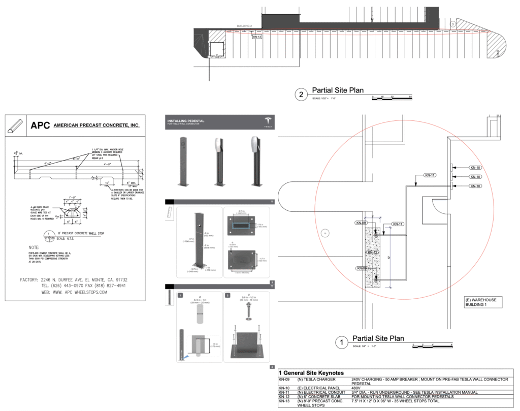
Scope of Work: Tenant Improvement of Existing Warehouse Building. 1. Add Tesla Chargers to existing parking lot. 2. Add industrial grade concrete wheel stops. 3. Remodel existing bathrooms ensuring ADA compliance. 4. Existing Office Remodel.

Building Size: 857,000 SF

Lead Designer: Aram Marquez

Location: Ontario, CA

Site Plan
Site Plan
Site Plan
Site Improvements
Bathroom Remodel
Office Remodel
Scroll to Top