- All Posts
- Portfolio

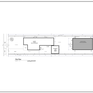
Project: Remodel (E) Residence + (N) Detached ADU Scope of Work: Remodel existing residence and propose a new detached ADU...

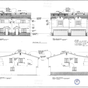
Project: CUP – Multi-family Scope of Work: CUP – New three story apartment building consisting of 5 units. Building Size:...

Project: Palo Verde Pl – ADU + Addition Scope of Work: Detached ADU + Addition to (E) Residence Building Size:...

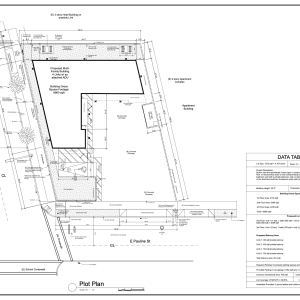
Project: W 131st St – ADU Scope of Work: ADU Conversion + Addition. Building Size: 585SF Lead Designer: Ixtzul Marquez...

Project: Illinois Ave – ADU Scope of Work: ADU Conversion + Addition. Building Size: 765 SF Lead Designer: Ixtzul Marquez...

Project: Woodlyn Ln Residence Scope of Work: Hillside Remodel of existing Cape-Cod Residence to Mediterranean/French Chateau-inspired look, featuring recessed windows with...

Project: Frontenac Ave Residence Scope of Work: New Hillside Single Family Residence Building Size: 3,400 SF Lead Designer: Aram Marquez...

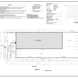
Project: Mildred Ave Warehouse Tenant Improvement Scope of Work: Tenant Improvement of Existing Warehouse Building. 1. Add Tesla Chargers to...
- All
- Blog
- Portfolio
Project: CUP – Multi-family Scope of Work: CUP – New three story apartment building consisting of 5 units. Building Size: 6860 sf Lead Designer: Ixtzul Marquez Location: Compton, CA 1st Floor Plan 2nd Floor Plan 3rd Floor Plan
Project: Woodlyn Ln Residence Scope of Work: Hillside Remodel of existing Cape-Cod Residence to Mediterranean/French Chateau-inspired look, featuring recessed windows with an inset stucco treatment, and traditional facade cornice profiles. Building Size: 4,400 SF Lead Designer: Aram Marquez Location: Bradbury, CA Site Plan Floor Plan Floor Plan West Elevation Section
Project: Frontenac Ave Residence Scope of Work: New Hillside Single Family Residence Building Size: 3,400 SF Lead Designer: Aram Marquez Location: Los Angeles, CA Site Plan Floor Plan Floor Plan West Elevation East Elevation South Elevation North Elevation
Project: Remodel (E) Residence + (N) Detached ADU Scope of Work: Remodel existing residence and propose a new detached ADU at the rear of the property. Building Size: (E) Residence 1481 sf + (N) ADU 920 sf Lead Designer: Ixtzul Marquez Location: Bell, CA ADU Remodel Floor Plan Remodel Elevations

