Project: W 131st St – ADU
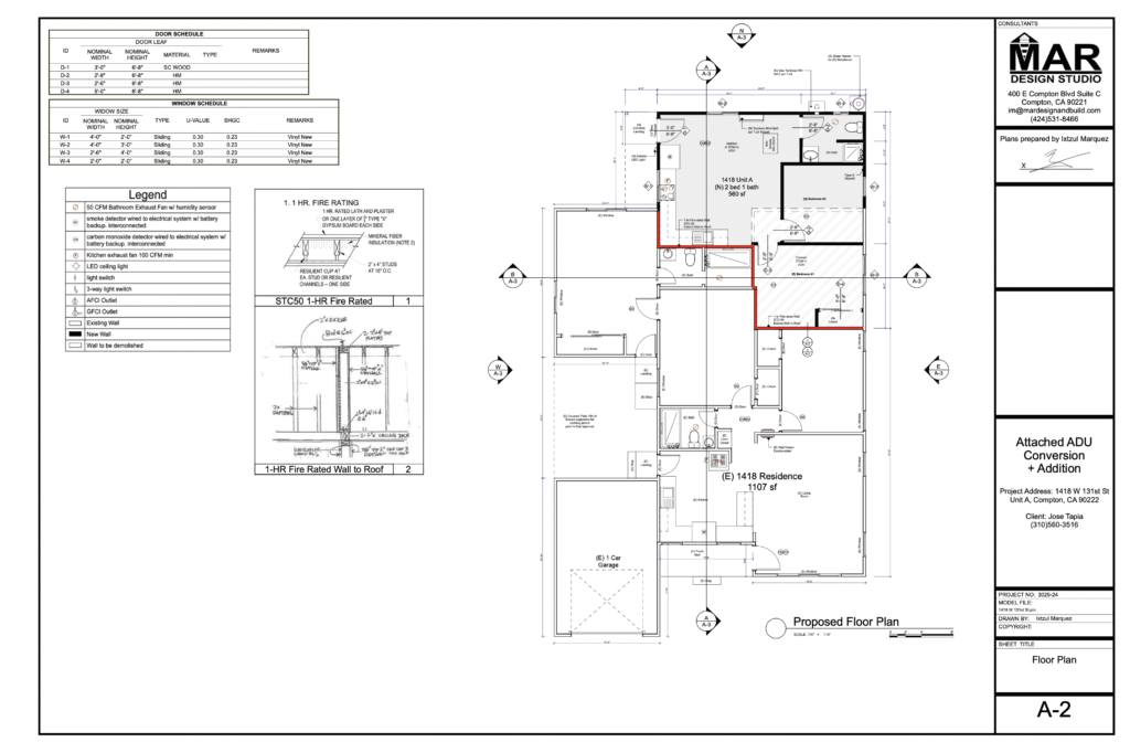
Scope of Work: ADU Conversion + Addition.
Building Size: 585SF
Lead Designer: Ixtzul Marquez
Location: Compton, CA


Scope of Work: ADU Conversion + Addition.
Building Size: 585SF
Lead Designer: Ixtzul Marquez
Location: Compton, CA

