Project: Illinois Ave - ADU

Scope of Work: ADU Conversion + Addition.

Building Size: 765 SF

Lead Designer: Ixtzul Marquez

Location: South Gate, CA

Site Plan
Floor Plan
&
Elevations
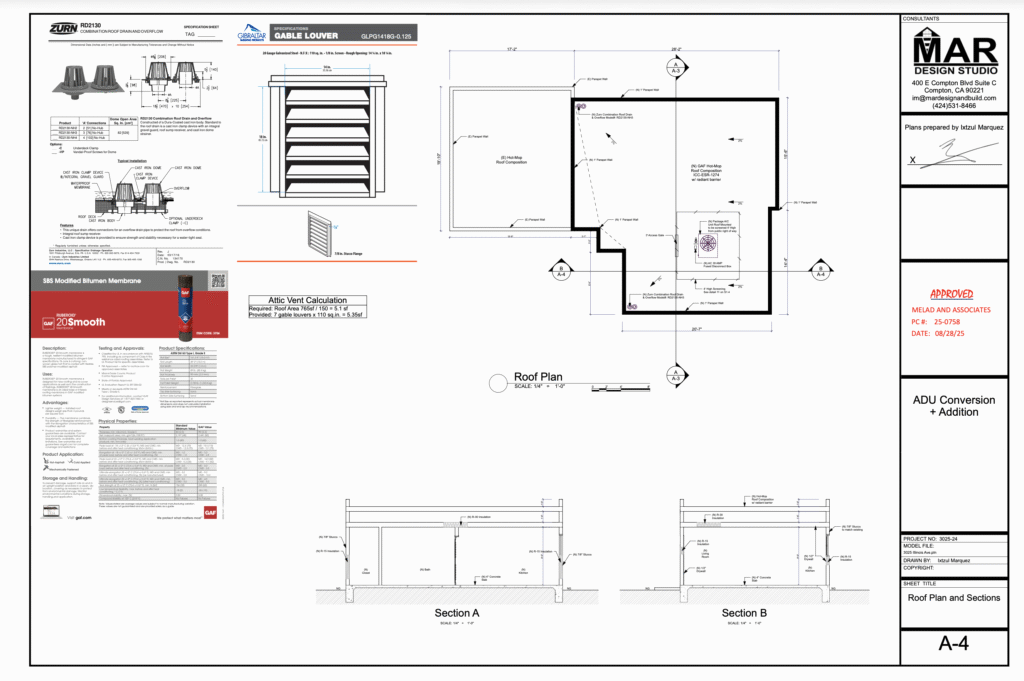
Roof Plan
&
Sections
Scroll to Top