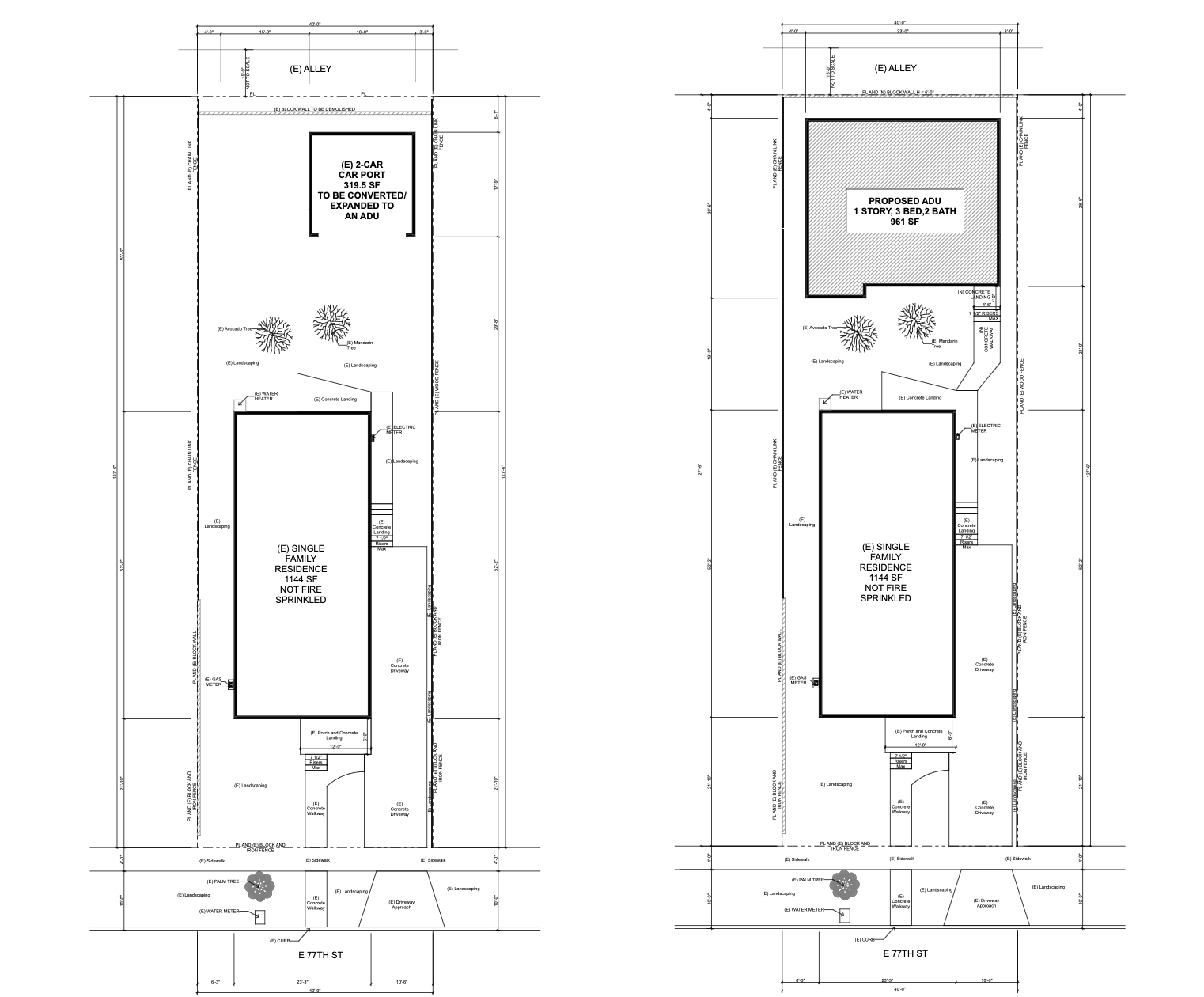
ADUs
Pricing for Accessory Dwelling Units
*Special pricing is available to repeat clients.
(424) 531-8466
$7,500
Self-Service Pricing
$10,000
Full-Service Pricing
This package includes the architectural plans, structural plans, and Title-24 Compliance Report. Basic 3D perspective visuals of ADU. This option is only recommended for clients with prior experience with local agencies.
This package includes the architectural plans, structural plans, and Title-24 Compliance Report, and the permit application process and coordination with the applicable local agencies.
Most Popular
$12,500
Premium-Service Pricing
This package includes everything in the Full-service package plus:
A comprehensive 3D model with clickable links to 2D architectural drawings.
4 Photorealistic Renderings
Note: The above pricing tiers apply only to new detached ADUs (accessory dwelling units). This pricing does not apply to historical or hillside zones. The client is responsible for paying all fees associated with the permit application (plan check fees, permit fees, etc...).
Let us reach out
Someone from our team will reach out within 1 business day.
Sneak Peak
What to expect





















