
Project: Mildred Ave Warehouse Tenant Improvement Scope of Work: Tenant Improvement of Existing Warehouse Building. 1. Add Tesla Chargers to...

Project: Mildred Ave Warehouse Tenant Improvement Scope of Work: Tenant Improvement of Existing Warehouse Building. 1. Add Tesla Chargers to...

Project: Fremont Ave ADU Scope of Work: New Detached ADU with a 2nd story uncovered deck, and an Attached 2-Car...

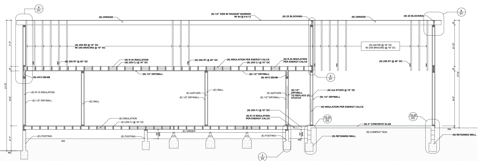
Project: 4th Ave Residence Scope of Work: Remodel/addition of existing residence. Ceiling Height elevated from 8 feet to 9 feet....
Project: CUP – Multi-family Scope of Work: CUP – New three story apartment building consisting of 5 units. Building Size: 6860 sf Lead Designer: Ixtzul Marquez Location: Compton, CA 1st Floor Plan 2nd Floor Plan 3rd Floor Plan
Project: Palo Verde Pl – ADU + Addition Scope of Work: Detached ADU + Addition to (E) Residence Building Size: 1200 SF ADU, 560 SF Addition Lead Designer: Ixtzul Marquez Location: Rancho Cucamonga, CA Addition Floor Plan Addition Sections&Elevations ADU Floor Plan, Elevations, &Sections
Project: W 131st St – ADU Scope of Work: ADU Conversion + Addition. Building Size: 585SF Lead Designer: Ixtzul Marquez Location: Compton, CA Floor Plan